Agence
Prestations
Residential
Commercial
Presse
Avis
Contact
Agence
Prestations
Residential
Commercial
Presse
Avis
Contact
White Interiors, Architecture d'Interieur
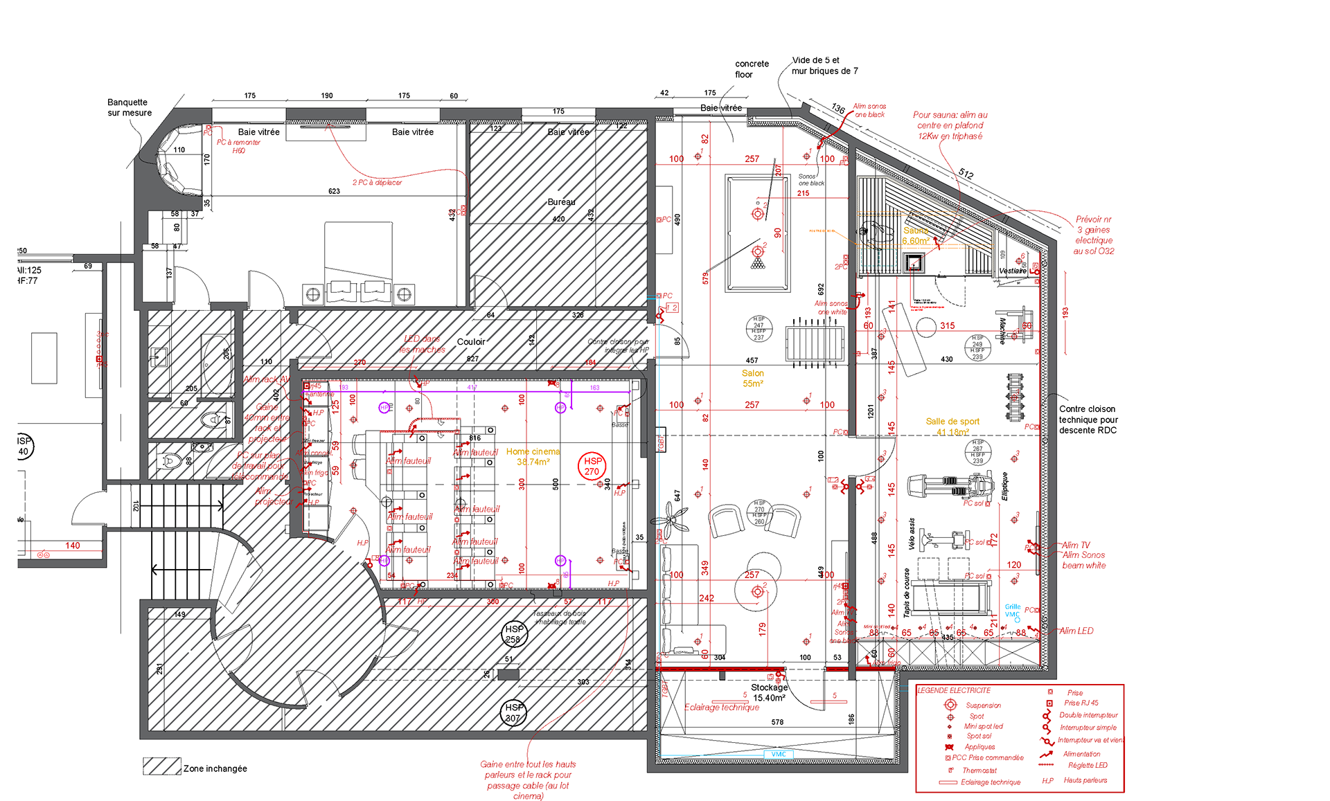
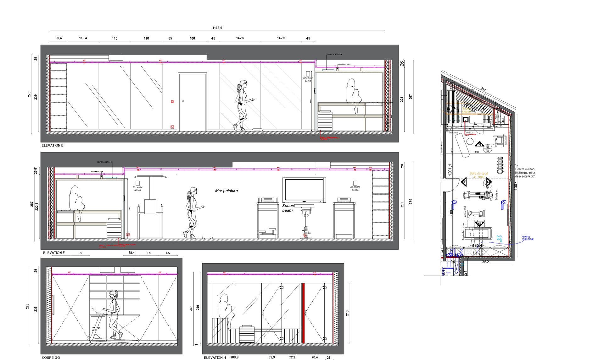
Fitness et Home Cinéma
Plans et détails
Photos Avant/Après
You may also like
Renovation Complete
2022
Villa Paloma à Tourrettes-sur-Loup
2024
Un ecrin pour collectionneur
2018
Appartement dans les Collines
2017
Villa dans l'arrière Pays
2020
Maison de Village - Town house
2018
Aménagement d'une villa à Vence
2020
Espace de Vie chaleureux
2022
Appartement Haussemannien - Carré d'or, Nice
2020
Objectif vue
2017
↑
Back to Top